Property Description

Corner Queensberry and Curzon Streets, North Melbourne: Edge of the CBD

Area: 1,096 sqm*

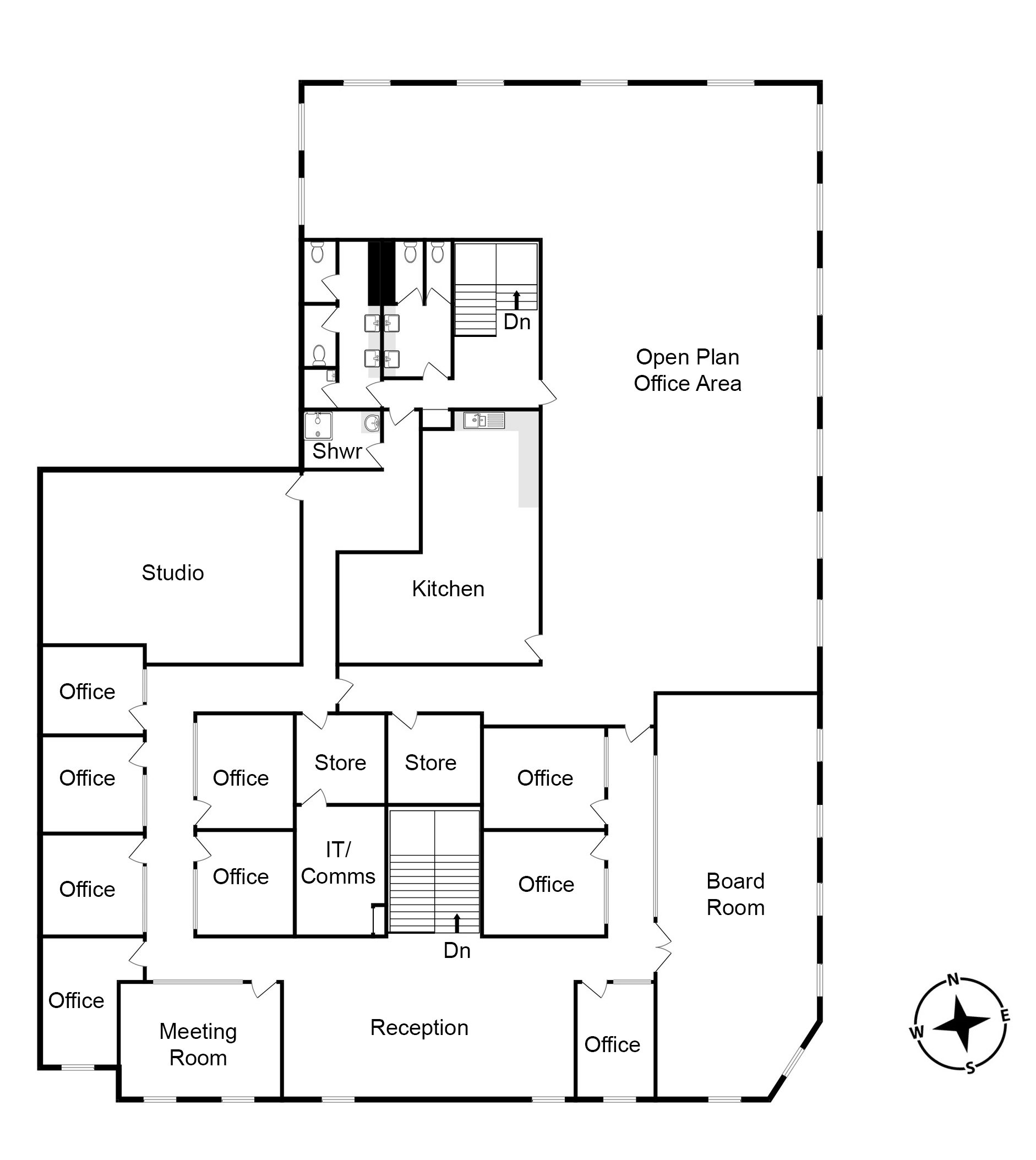
Fully partitioned with seminar/conference spaces, offices, large kitchen and breakout area.

9B Permit available

12 car spaces

Tram at the door and 12 min walk from North Melbourne Train Station

Available Now

Please contact our office for further details and to arrange an inspection.

^stpa *approx.

For Lease

Floor Area

1,096 sqm